佳里區華廈售

佳里區華廈售|佳里三房平車

台南市佳里區~電梯華廈~年年如意精緻三房平車
列印
  • 售880萬
    1. 案號:28443
    2. 類型:華廈
    3. 總登記坪數:
    4. 每坪單價:
    5. 地址:台南市佳里區子龍三街
    1. (煩請告知聯絡人,您是在House-Info房屋網看到廣告,感恩幫忙)
    2. 0910-787-268
    1. 市話:
    2. 公司名稱:
    3. 公司地址:
    台南市佳里區~電梯華廈~年年如意精緻三房平車-QR CODE 我要留言
物件介紹
詳細資料
銷售狀態
帶看中
格局
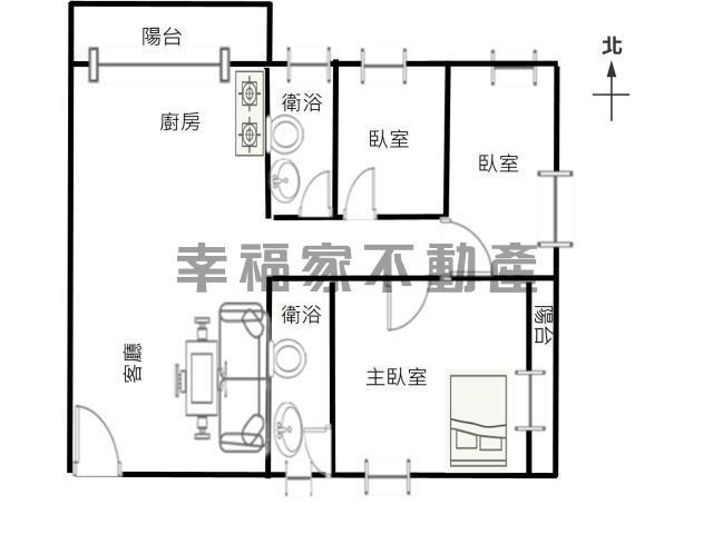
3房,2廳,2衛,1陽台,1廚房
社區/大樓
年年如意(舜勳建設)
屋齡
3年
車位
一樓平面車位
座向
朝西南
無障礙環境
沒有
所在樓層
4樓/共5樓
管理費
900元/月
管委會
中庭
沒有
電梯
面前道路
6米
邊間
是否凶宅
不是
瀏覽人次
54人次
特色描述
【輕屋齡】【三房+平車】

【近麻豆交流道】【贈家具家電】


台南市佳里區【子龍三街】年年如意精緻三房平車

●委託價格:880 

●建物面積:33.11

室內面積:23.49

建物樓層:4/5

室內格局:322

建築完工日:11011(4年)



◎附贈冷氣、床組、熱水器,固定物不拆

◎簡約輕裝潢,前後採光,自住.出租兩相宜

◎近麻佳路,麻豆交流道,交通四通八達

◎佳里華廈,地點絕佳,把握機會,錯過可惜




LINE好友人數已滿,歡迎直接來電詢問

合法經紀業者,通過國家考試及格特約代書

給您最誠信,經營,專業的服務,價錢實在

幸福聯賣,成交快速,保障交易,安全買賣

履約保證,詳細產權現況說明書,讓您放心

歡迎來電買屋.委託賣屋.土地.農地.工業地.廠房



買屋搜尋【台南農地出售】【阿妙房屋0910-787-268】


台南房屋,台南不動產,台南電梯大樓,台南大樓,台南電梯華廈,台南公寓,台南廠房,

台南賣屋,台南透天,台南店面,台南別墅,​台南透天店面,台南透天別墅,台南買屋,

台南租屋,台南土地買賣,台南農地,台南建地,台南廠房,台南工業用地,高雄房屋,

高雄不動產,高雄電梯大樓,高雄大樓,高雄電梯華廈,高雄公寓,高雄房屋高雄廠房,

高雄賣屋,高雄透天,高雄店面,高雄別墅,​高雄透天店面,高雄透天別墅,高雄買屋,

高雄租屋,高雄土地買賣,高雄農地,高雄建地,高雄廠房,高雄工業用地,高雄工業地

鴻運富不動產開發有限公司  幸福家不動產安南店 營業員證號(93)登字第040059號

以上資料僅供參考,如有因誤繕,誤寫等記載錯誤事由,一律以謄本登記為準。

上架資料僅於委託銷售契約期間內有效。若因契約期滿,

成交等情形而生無法銷售等事由者,請務必與承辦人員再次確認。




 
佳里華廈-0
佳里華廈-0
佳里華廈-1
佳里華廈-1
佳里華廈-2
佳里華廈-2
佳里華廈-3
佳里華廈-3
佳里華廈-4
佳里華廈-4
佳里華廈-5
佳里華廈-5
佳里華廈-6
佳里華廈-6
佳里華廈-7
佳里華廈-7
佳里華廈-8
佳里華廈-8
佳里華廈-9
佳里華廈-9
佳里華廈-10
佳里華廈-10
佳里華廈-11
佳里華廈-11
佳里華廈-12
佳里華廈-12
佳里華廈-13
佳里華廈-13
佳里華廈-14
佳里華廈-14
物件留言
請注意,如果您詢問的內容與物件不相符合或是廣告,經過審核,系統將會直接刪除您的發問內容
等待圖示
相似物件
免責聲明:House-Info房屋網平台系統為租用式開放房屋買賣網站建置平台,僅提供會員查詢-台南市,佳里區,華廈-等房屋資訊參考,並不涉入任何諮詢、交易。 物件(服務)聯絡人公佈的資訊、文字、照片、圖形、產權、廣告內容、或其他資料若有不實或違法情事,或與客戶聯絡交易過程中若衍生民事或刑事等法律問題,皆與House-Info房屋網站無關,所有商標、文章、名稱等版權,皆歸屬原著作者所有!